Offered For Sale

224 Lexford

#OC25094883

RES

5/4

Built in 2025

$2,150,000

About the property

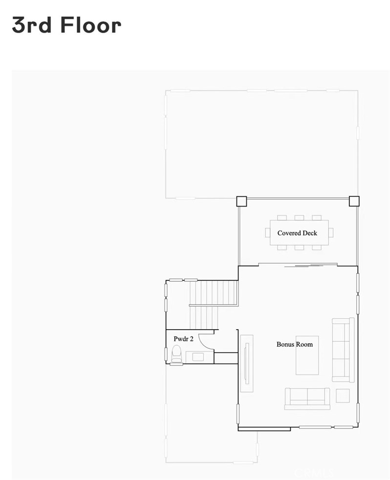
**Discover the Best Value in Irvine School District: Brand New 2025 Construction Home!** Introducing your dream home—this stunning modern Townhome residence is attractively priced at just $2.15 million, nearly $400,000 below market value! With an impressive unit price of only $658/SF, this spacious 3281 square foot home features 5 bedrooms, including a convenient first-floor bedroom and 4 bathrooms, 2 powder rooms ensuring comfort for the entire family. Enjoy the luxury of a rooftop activity room with a large enclosed ceiling, perfect for relaxation and entertainment. The front and back yards provide ideal outdoor spaces for gatherings and leisure. Located just a 2-minute drive from Soils Park (serving kindergarten through middle school) and the highly-rated Portola High School, this home is also within a quick 5-minute bike ride to excellent educational facilities. The property includes a two-car garage equipped with Tesla charging capabilities, a washer and dryer, and stylish window treatments for added convenience, this home offers exceptional value! **Key Features:** 1. **First Floor:** - Open-concept floor plan that promotes seamless living. - Secondary bedrooms that are perfect for guests, children, or a home office. 2. **Second Floor:** - Four additional bedrooms, ideal for family or visiting guests. - Luxurious owner's suite, providing a serene private retreat. 3. **Third Floor:** - Versatile bonus room, perfect for a media room, game room, or hobby space. - Opens to a covered deck, ideal for entertaining guests. This home is designed for modern living, catering to a variety of lifestyles! **Property Details:** - Total Space: 3,281 sqft - Bedrooms: 5 - Bathrooms: 4 - Powder Rooms: 2 - Garage: 2-car - HOA: $260/month - Base Tax Rate: 1.07% - Mello-Roos: $9,592/year - Solar Lease: $194/month -washer &dryer included -Blinder included virtual stage Don’t miss this incredible opportunity to own a piece of luxury in the highly sought-after Irvine School District!

Features

General

  • Half Bathrooms 0
  • Real Estate Sub Type Townhouse
  • Real Estate Type RES
  • Square Feet 3,281
  • Stories 3
  • Year Built 2,025
  • Agent Name Lynn Paris
  • Broker Id OC06746
  • Office Name Pinnacle Real Estate Group
  • Days On Market 0
  • Status Active
  • Agent Cell 949-351-1343

Building

  • Cooling Central Air
  • Exterior Features Dog Park
    Park
  • Interior Features Balcony

Location

  • Subdivision Other (OTHR)
  • View Canyon

Schools

  • High School Portola

Location

Questions

Human check: how many dogs are below?

     

Submit